PROGETTAZIONE 3D DEGLI UFFICI
L'aspetto più importante per l'arredamento di un luogo di lavoro è la progettazione che richiede esperienza, professionalità e competenza.
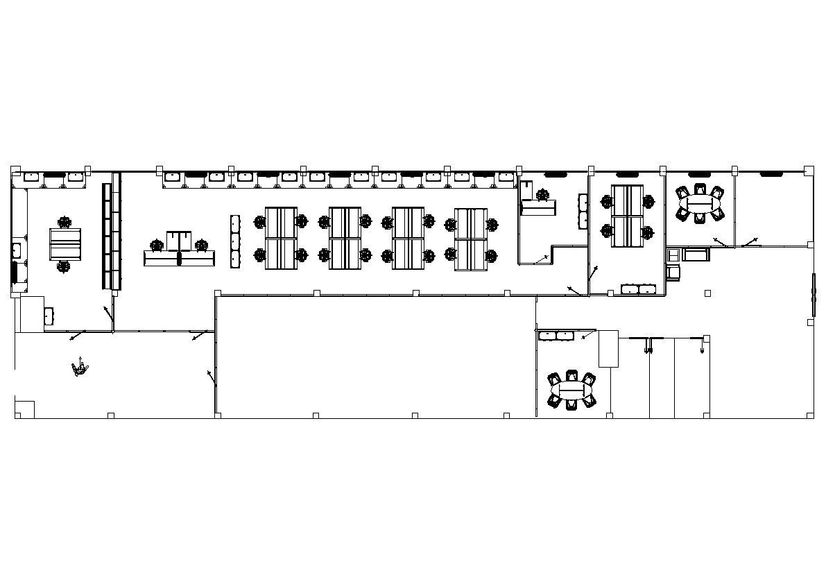
Alfa arredi per uffici in fase di preventivo realizzerà sempre il VOSTRO render grafico in AutoCAD.
All'interno dell'azienda l'ufficio tecnico saprà farvi vivere in anteprima il vostro ambiente di lavoro, in questo modo sarà più semplice capire gl' ingombri dell'arredamento, scegliere la disposizione, decidere colori e finiture che più s' addicono.
PROGETTIAMO GLI
SPAZI SU MISURA
Il nostro staff in sede a Novara può eseguire infatti render grafici in AutoCAD di : pareti divisorie, reception, sale riunioni, uffici, vetrine, call center, direzioni commerciali, archivi e magazzini, consigliandoti la scelta di arredi che sia davvero funzionale ad ogni diverso settore.
Prenota un sopralluogo scrivendoci un messaggio, oppure chiamaci per conoscere l'assortimento di:
- pareti divisorie e pareti attrezzate
- sedute e mobili direzionali
- sedie e scrivanie operative
- reception, sale riunioni e sale attesa
- archivi e scaffalature
- pannelli fonoassorbenti
- armadietti spogliatoio
- accessori, espositori, e molto altro ancora.
PROGETTAZIONE GRAFICA IN AUTOCAD E REALIZZAZIONI
Qualunque sia l'arredamento richiesto, noi di ALFA sas di Novara realizziamo sempre, mentre elaboriamo i preventivi,
il render grafico in AutoCAD del tuo nuovo ambiente di lavoro.
Potrai così cogliere facilmente spazi liberi e ingombri, perfezionando la scelta dei tuoi arredi.
Sfoglia le immagini per vedere alcuni dei lavori realizzati con relativo render grafico.
esegui il tuo progetto con una semplice telefonata!































































